Schaltplan Signalanlage DP04

Antworten
Rudi Mente
Beiträge: 35
Registriert: Di 29. Mär 2016, 18:45
Erstzulassung: 2016
Km-Stand: 53000
Modell: DP04
Erstzulassung der 2. XT1200Z: 0
Km-Stand der 2. XT1200Z: 0
Ort: Hannover

Schaltplan Signalanlage DP04

Beitrag von Rudi Mente »

Moin zusammen,

da ich durch Winterwetter und Saisonkennzeichen frustiert, etwas in Sachen Moped machen wollte, habe ich mir bei Tante Louise das Smart-Turn-System bestellt. Gelegentlich lasse ich nämlich den Blinker doch mal etwas länger stehen.

Zwecks Installation suche ich im Kabelstrang der linken Lenkerarmatur die Adern zu den Blinkern und zum Blinkerrelais. Den Kabelbaum habe ich bereits bis hinter das linke Seitenverkleidungsteil verfolgt und festgestellt, dass er dort in einen 10-poligen Stecker übergeht.
Zwecks Nagelprobe habe ich die Steckverbindung getrennt und die Blinker waren ohne Funktion.

Laut STS-Montageanleitung müsste es sich um ein dunkelgrünes und ein dunkelbraunes für die Blinker sowie ein braun/weißes zum Relais handeln.
Allerdings irritiert mich die Farbgebung der Kabel etwas, da die vermeintlichen Blinkerkabel immer auch einen blauen Streifen haben.


Hier im Forum habe ich einen farbigen Schaltplan gefunden, der aber so garnicht mit der Stekcerbelegung übereinstimmt, zumal er wohl von der DP01 stammt. Da hat sich ja auch was geändert, da z.B. der Tempomat mit verdraht sein dürfte.

Lange Rede kurzer Sinn, falls sich einer von euch mit der Problematik der Farbgebung bei Blinkerkabel der DP04 auskennt und mir diesbezüglich einen Tipp geben kann, dann danke ich schon mal jetzt dafür.

Im oberen Bild könnten somit die Kabel 3 und 4 (von oben gezählt, vordere Reihe) die Blinkerkabel sowie im unteren Bild das Kabel 4 (von oben gezählt, vordere Reihe) das zum Blinkerrelais sein?! Allerdings bin ich mir da noch nicht so ganz sicher und hätte dazu gerne noch eine andere Meinung gehört.
Kabelbaum2.jpg
Kabelbaum1.jpg
Möglicherweise kann mir auch jemand mit einem Bild (wenn ich mir was wünschen darf, dann bitte in Farbe) des Schaltplans für die Signalleuchten helfen. Leider habe ich keinen Zugriff auf das Handbuch der DP04.

Beste Grüße aus Hannover

Jens
Wenn nicht jetzt, wann dann?!
Henry
Beiträge: 80
Registriert: Di 17. Okt 2017, 21:54
Erstzulassung: 2016
Km-Stand: 39574
Modell: DP04
Erstzulassung der 2. XT1200Z: 0
Km-Stand der 2. XT1200Z: 0
Ort: 99189

Re: Schaltplan Signalanlage DP04

Beitrag von Henry »

Hallo Jens
Vielleicht kann man dir auf der Seite vom Hersteller helfen zumindest kann man dort Fragen stellen :
https://www.safer-turn.com/de/turn-signals-reinvented/
Ich hab nur ein Video gefunden vom Einbau bei einer MT09 Tracer . Ich weis nicht wie ähnlich die sich elektrisch sind .
https://www.youtube.com/watch?v=Pg693JMENfY
Ich hoffe ich habe Dir etwas helfen können .Wenn Du Erfolg hattest lasse es mich wissen denn ich bin auch chronischer Blinkerausmachvergesser und hab ja auch eine :xt12: DP 04 .
Viele Grüße aus Thüringen
Henry

Jeder lobt was NÜRBURGRING erprobt .

Simson Star, MZ TS150, MZ ETZ250, Yamaha XJ550, Yamaha XJR1200, Yamaha XJR1300 SP, Yamaha XT1200 ZE Race Blu
Benutzeravatar
Helmut
Beiträge: 5492
Registriert: Fr 31. Aug 2012, 20:12
Erstzulassung: 2022
Km-Stand: 0
Erstzulassung der 2. XT1200Z: 0
Km-Stand der 2. XT1200Z: 0
Modell der 2. XT1200Z: Anderes
Ort: Da wo ich mich Zuhause fühle

Re: Schaltplan Signalanlage DP04

Beitrag von Helmut »

Vielleicht hilft euch das viewtopic.php?f=16&t=7251&start=30
Meine Moppeds:
Hondas CB 500f>CB 400N>CB 750f>CB 900f>VFR 750f>
Yamahas FZS 1000>XT 1200(DP01)>MT 09 Tracer>XT 1200ZE(DP04)>Tracer 900 GT
BMW R 1250 GS

Gruß Helmut
Rudi Mente
Beiträge: 35
Registriert: Di 29. Mär 2016, 18:45
Erstzulassung: 2016
Km-Stand: 53000
Modell: DP04
Erstzulassung der 2. XT1200Z: 0
Km-Stand der 2. XT1200Z: 0
Ort: Hannover

Re: Schaltplan Signalanlage DP04

Beitrag von Rudi Mente »

Hallo Helmut,

vielen Dank dafür!

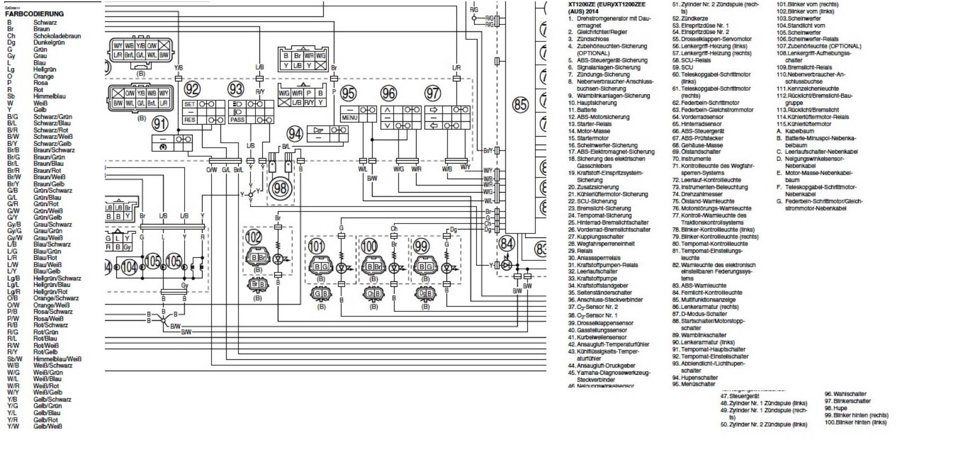
Die Farbmarkierungen im Plan muss ich jetzt noch auf die Kabel übertragen bekommen. Die Codierung der Kabel im Schaltplan und in Natura, sind mir noch nicht so ganz schlüssig.
Schaltplan Signalanlage farbig DP04.jpg
Möglicherweise kann mir ein fachkundiger folgende Fragen beantworten, ausgehend von Schalter 87:
1. Schaltplan blau/rotes Kabel (Blinkerrelais?) soll im Kabelbaum blau mit zwei roten Streifen sein?

2. Schaltplan Blinker links soll im Kabelbaum weiß mit zwei schwarzen Streifen sein?

3. Blinker rechts soll im Kabelbaum weiß mit zwei gelben Streifen sein?

Vielen Dank für weitere Unterstüzung!

Beste Grüße
Jens
Wenn nicht jetzt, wann dann?!
Benutzeravatar
Helmut
Beiträge: 5492
Registriert: Fr 31. Aug 2012, 20:12
Erstzulassung: 2022
Km-Stand: 0
Erstzulassung der 2. XT1200Z: 0
Km-Stand der 2. XT1200Z: 0
Modell der 2. XT1200Z: Anderes
Ort: Da wo ich mich Zuhause fühle

Re: Schaltplan Signalanlage DP04

Beitrag von Helmut »

Der Plan ist von einer Z, die Farben sind aber identisch.
87/97 ist der Blinkerschalter nicht das Relais.
Der ist von der ZE allerdings SW
ze.jpg
Meine Moppeds:
Hondas CB 500f>CB 400N>CB 750f>CB 900f>VFR 750f>
Yamahas FZS 1000>XT 1200(DP01)>MT 09 Tracer>XT 1200ZE(DP04)>Tracer 900 GT
BMW R 1250 GS

Gruß Helmut
Rudi Mente
Beiträge: 35
Registriert: Di 29. Mär 2016, 18:45
Erstzulassung: 2016
Km-Stand: 53000
Modell: DP04
Erstzulassung der 2. XT1200Z: 0
Km-Stand der 2. XT1200Z: 0
Ort: Hannover

Re: Schaltplan Signalanlage DP04

Beitrag von Rudi Mente »

Hallo Helmut,

vielen Dank für den Plan!

Beste Grüße
Jens
Wenn nicht jetzt, wann dann?!
Antworten

Zurück zu „Elektrik & Elektronik“